strucoretech.com
Call Today
667 229 9676
Get a Quote
Menu
Home
About Us
Company
Management Team
Services
Steel Detailing
Misc. Steel Detailing
Estimation-Take Off
Rebar Detailing & Estimation
Chutes Detailing
Connection Design
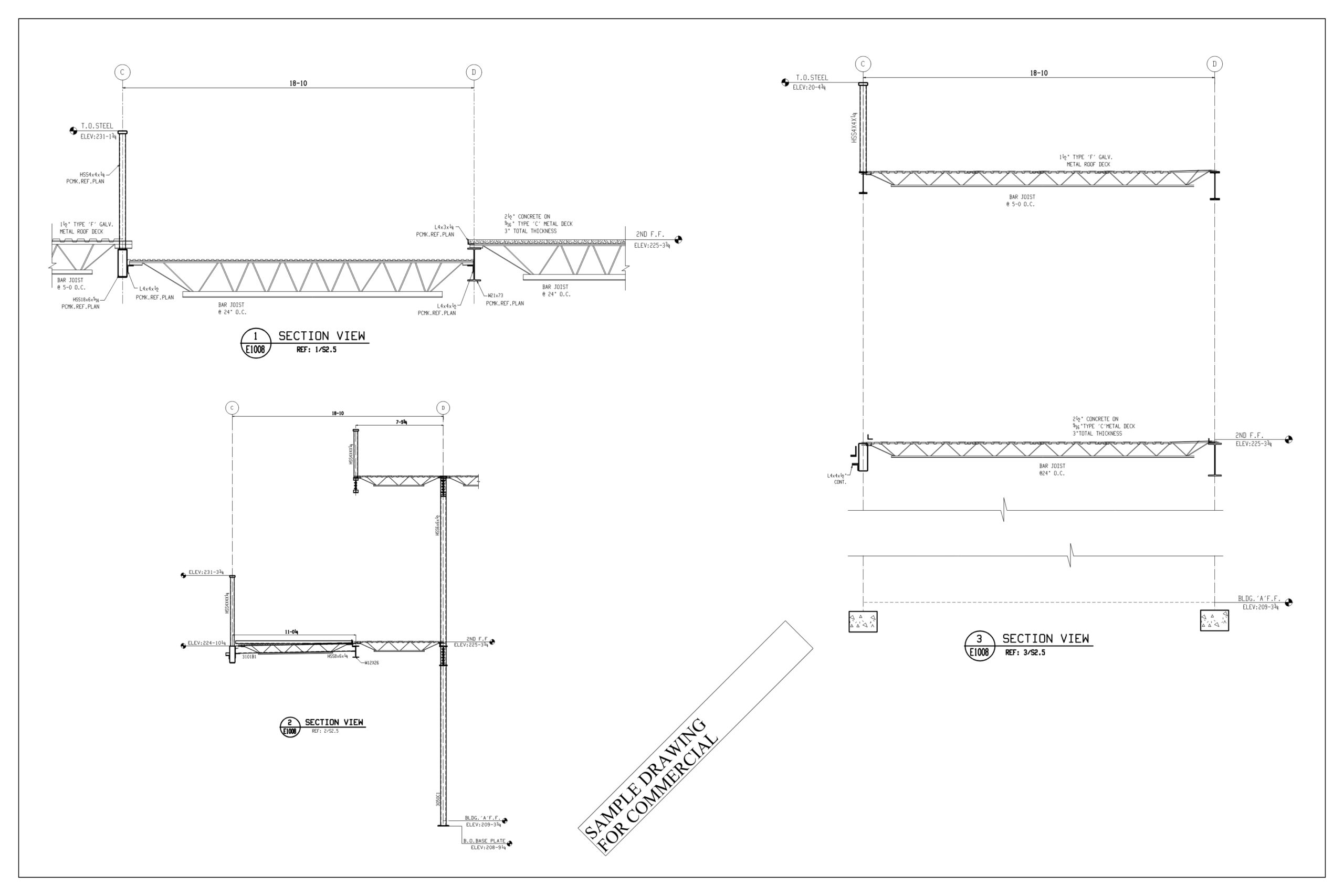
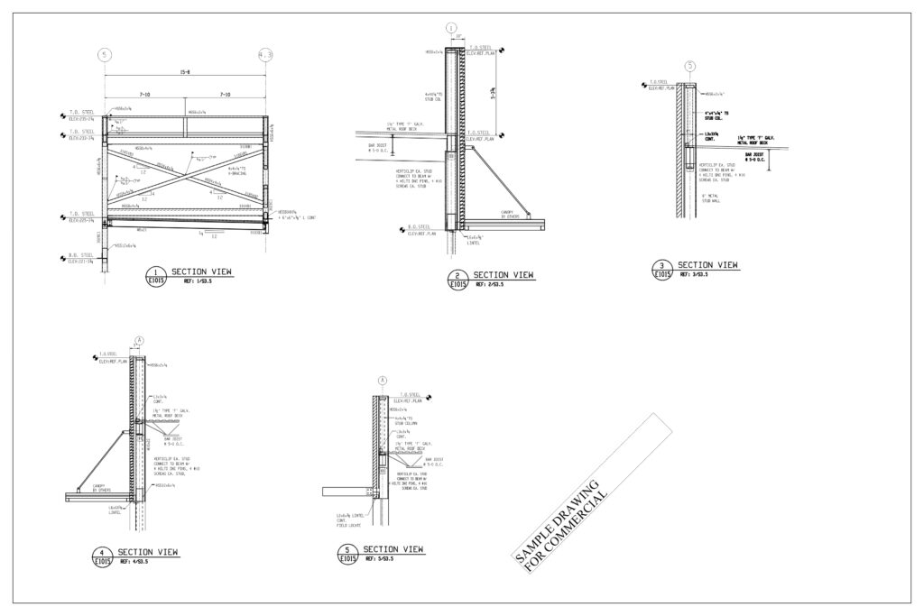
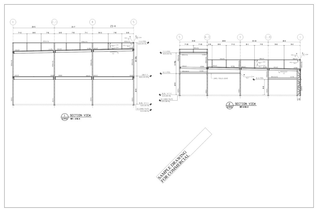
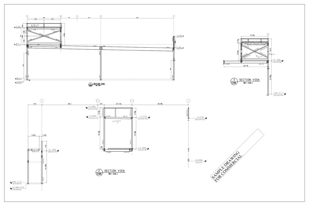
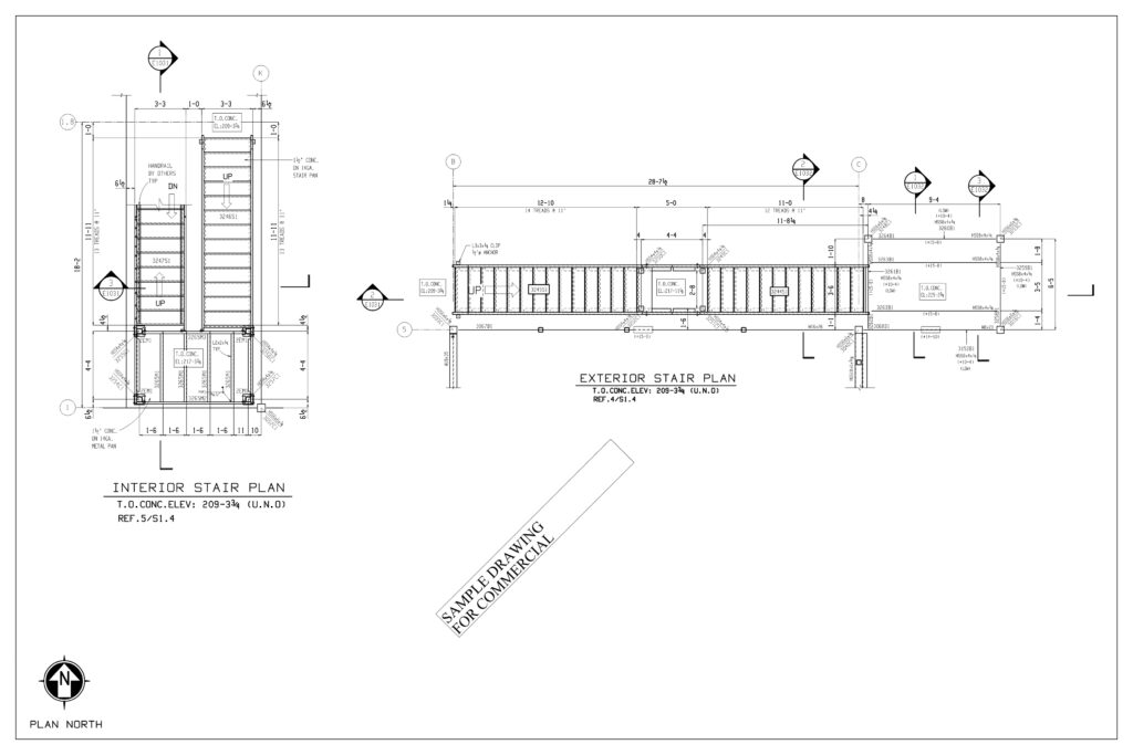
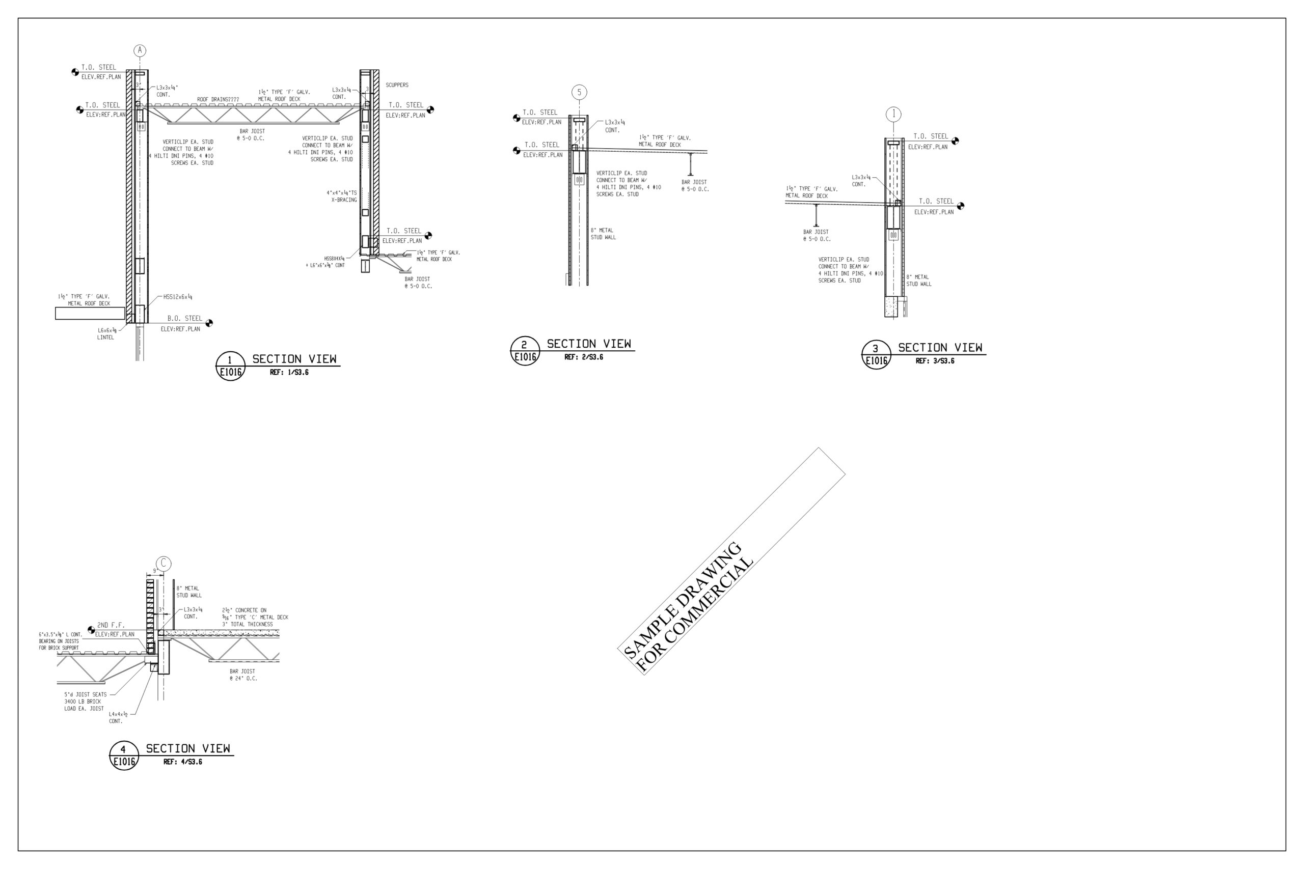
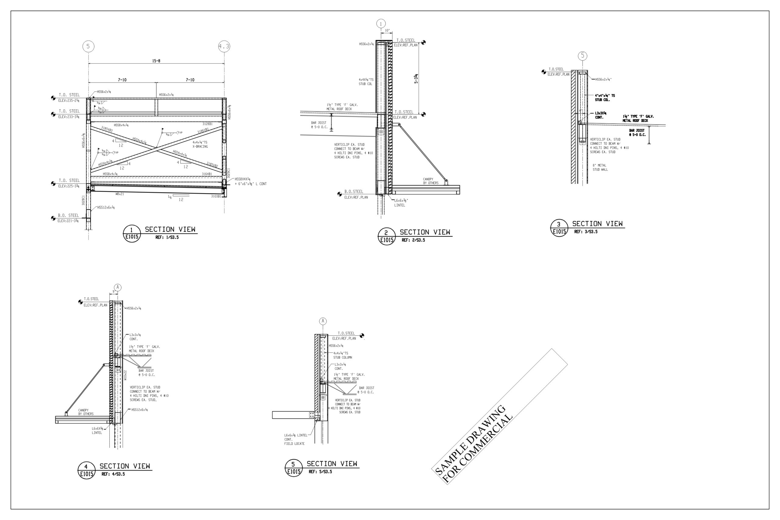
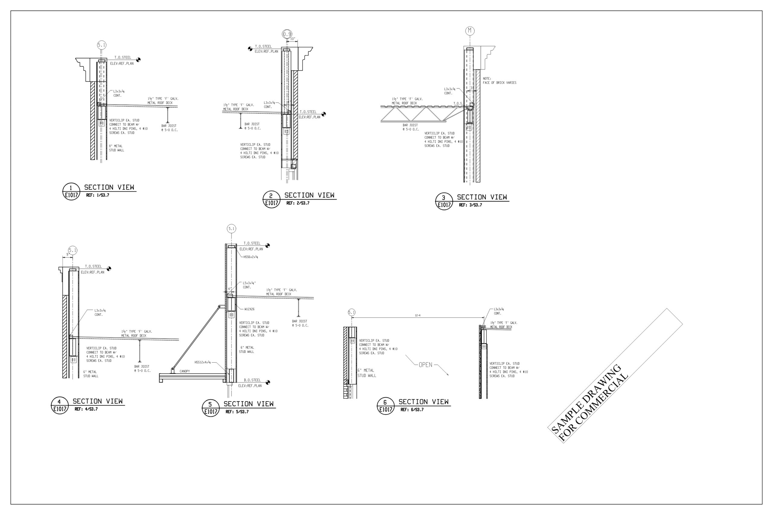
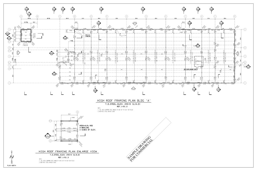
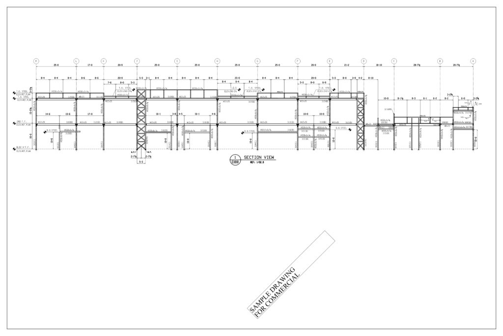
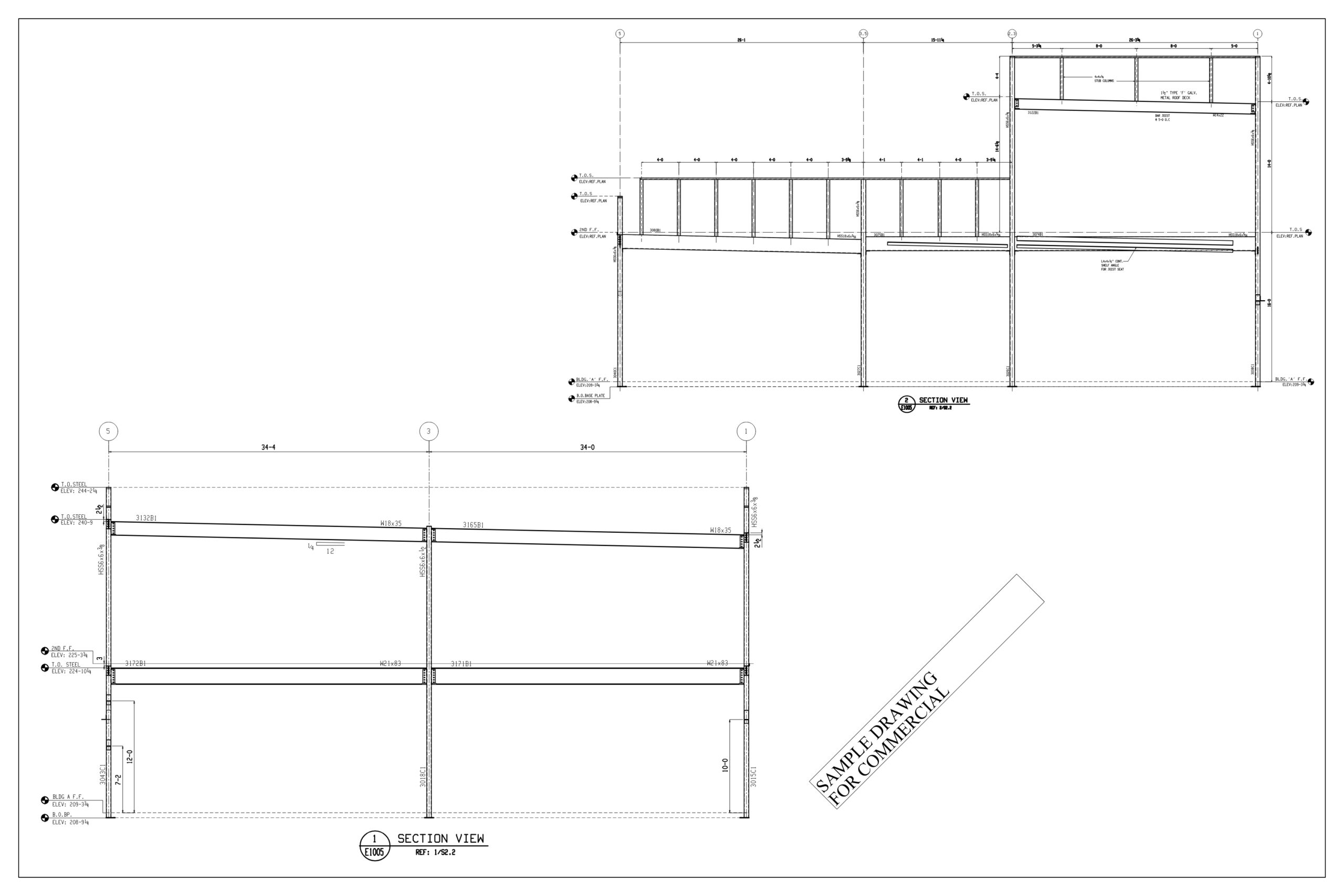
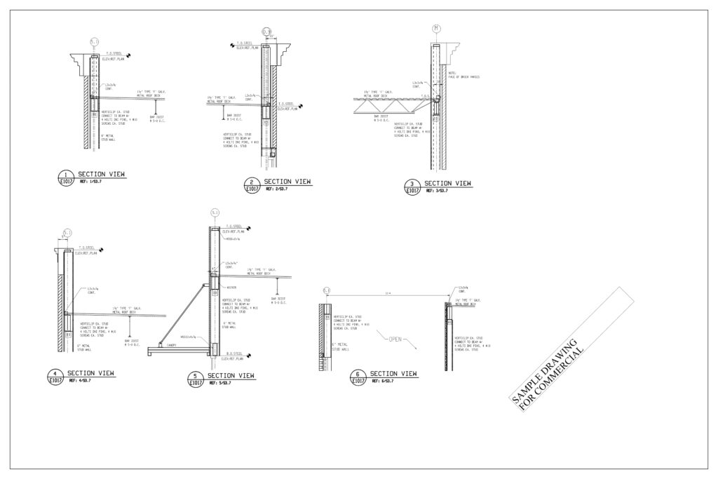
Sample Drawings
Sample Industrial Drawings
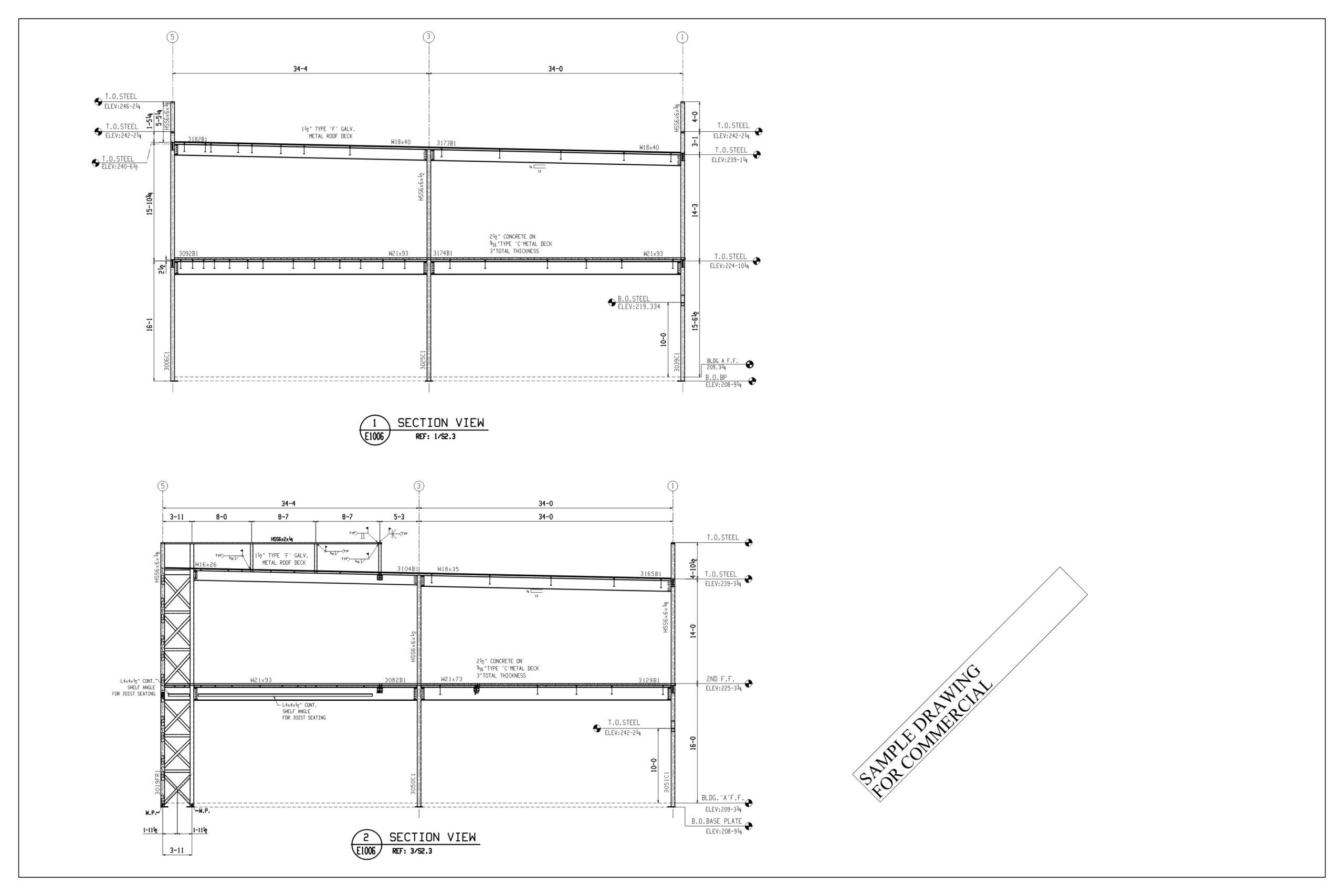
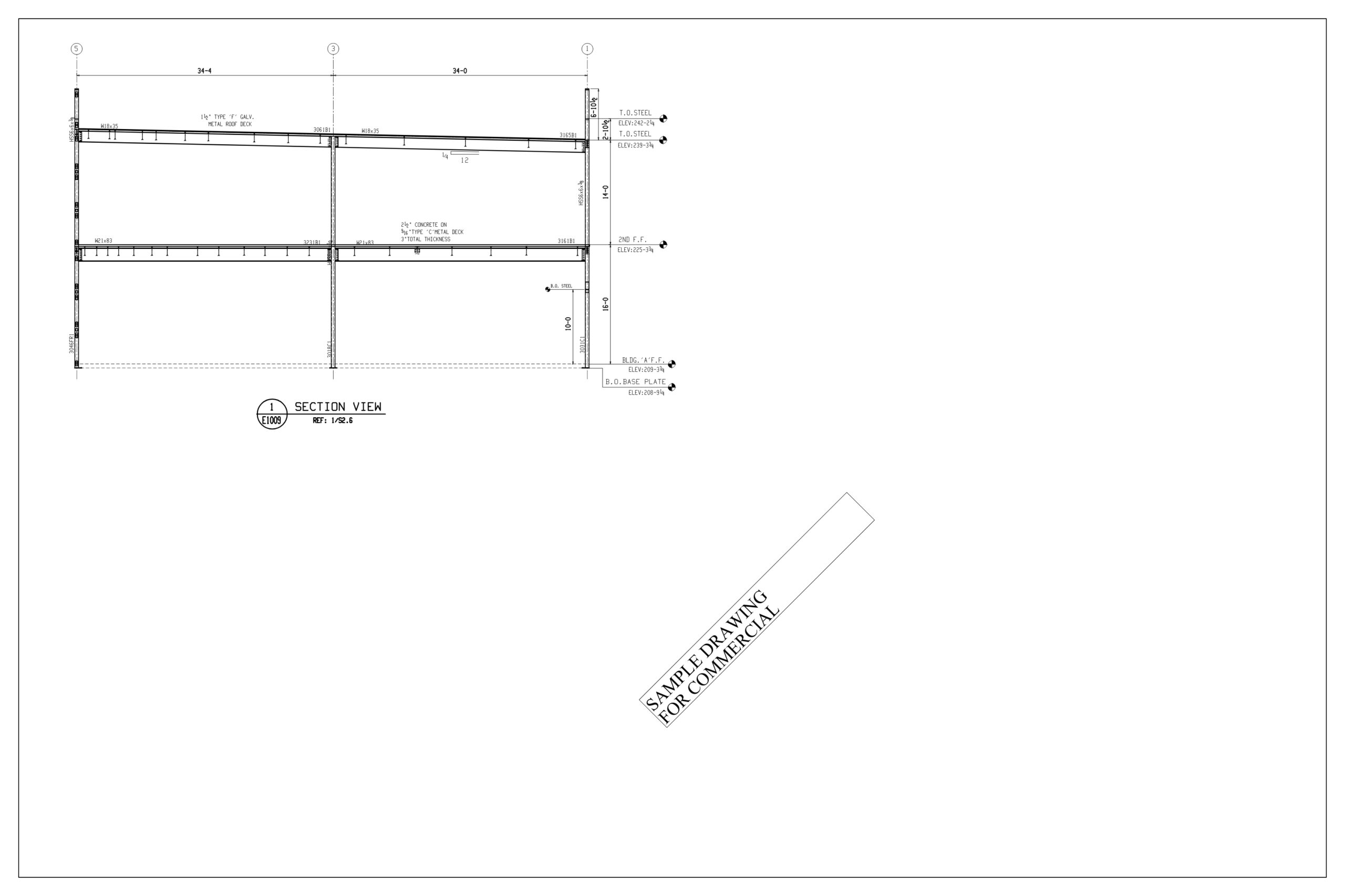
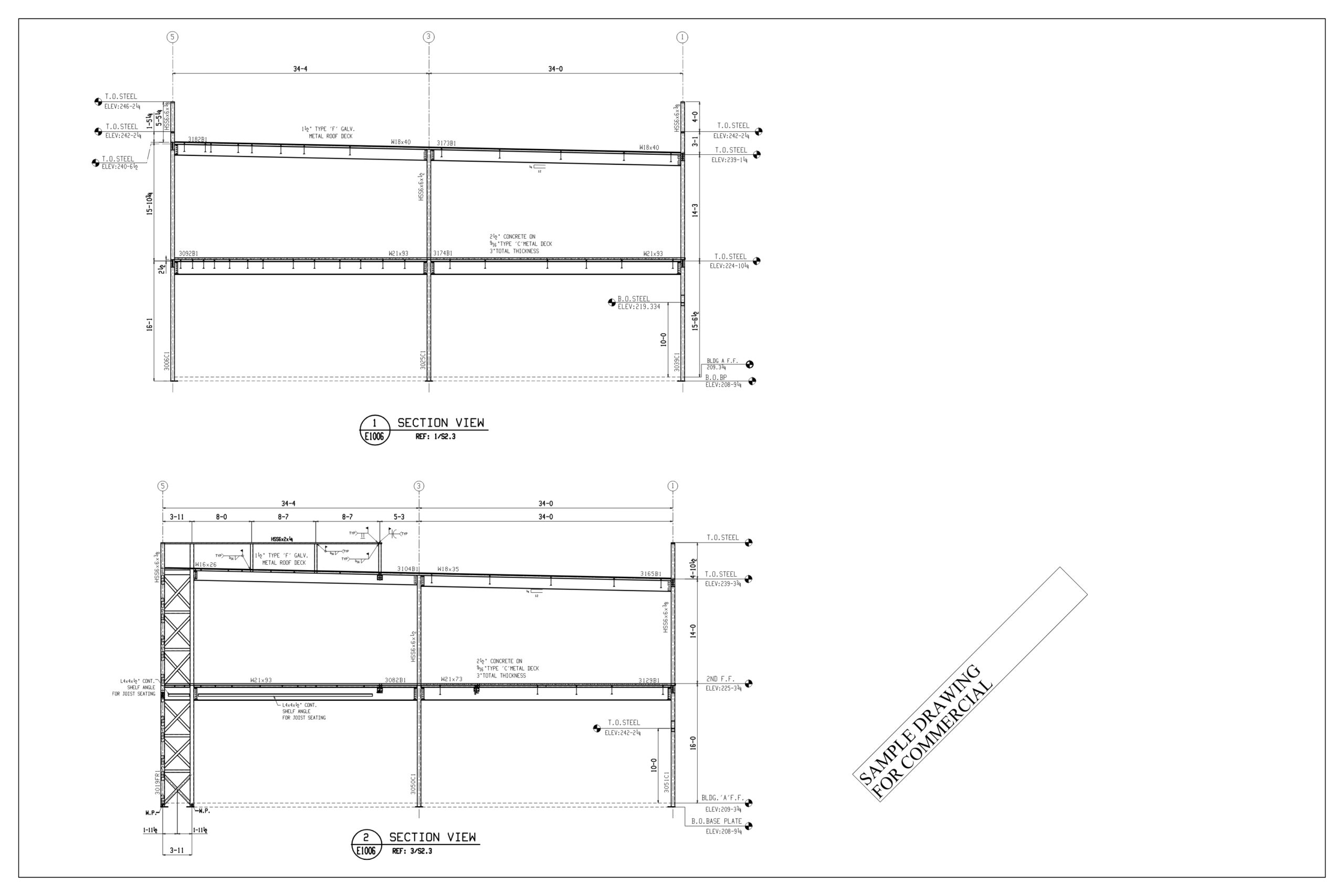
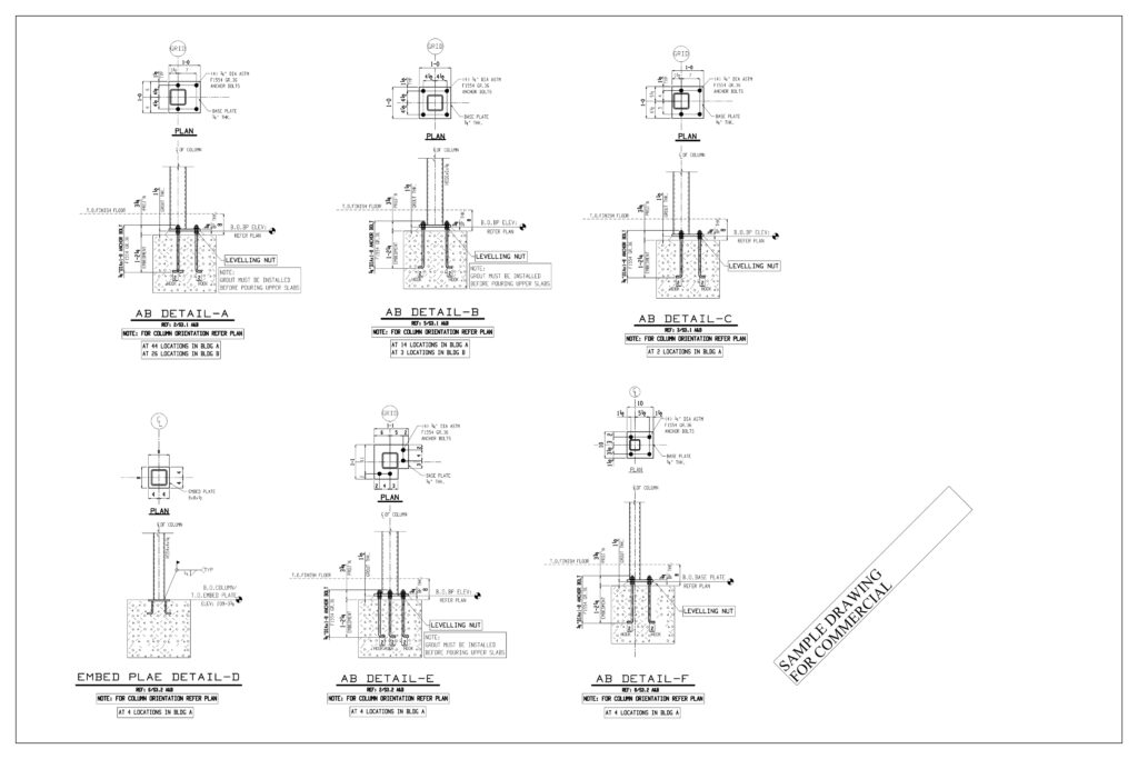
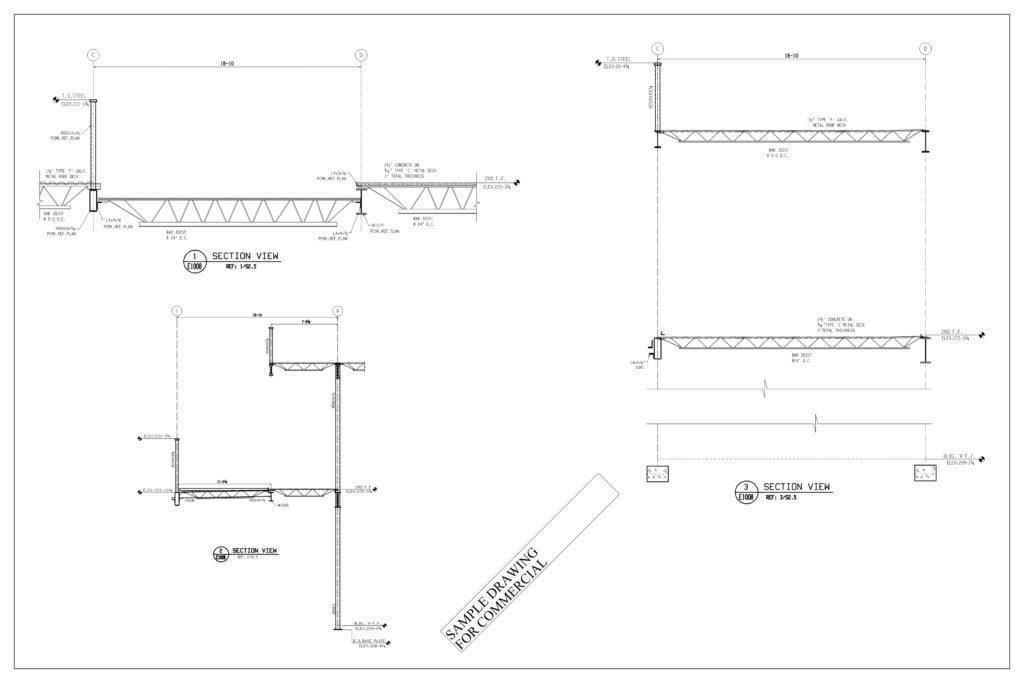
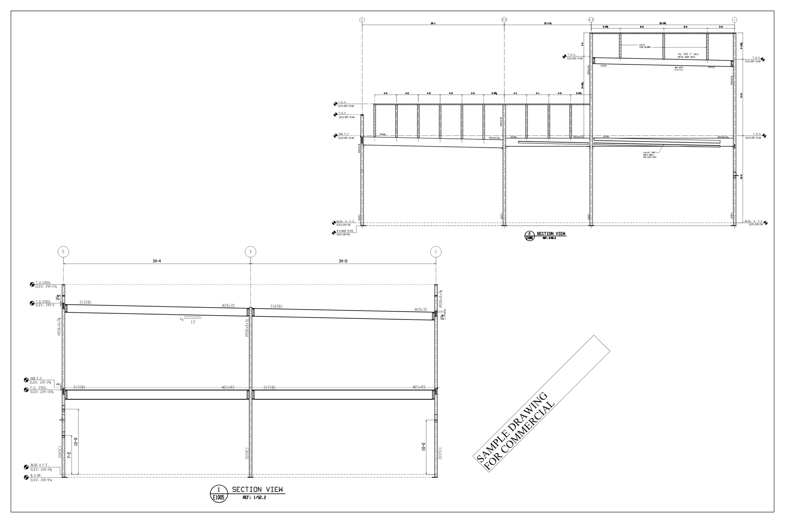
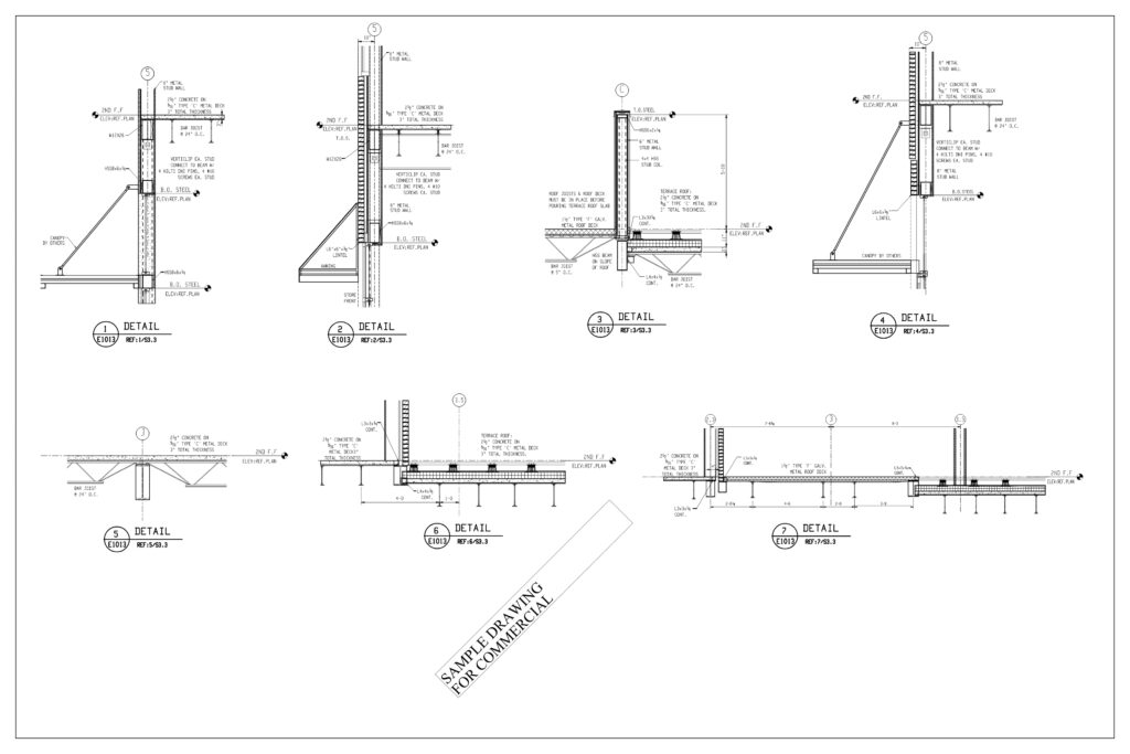
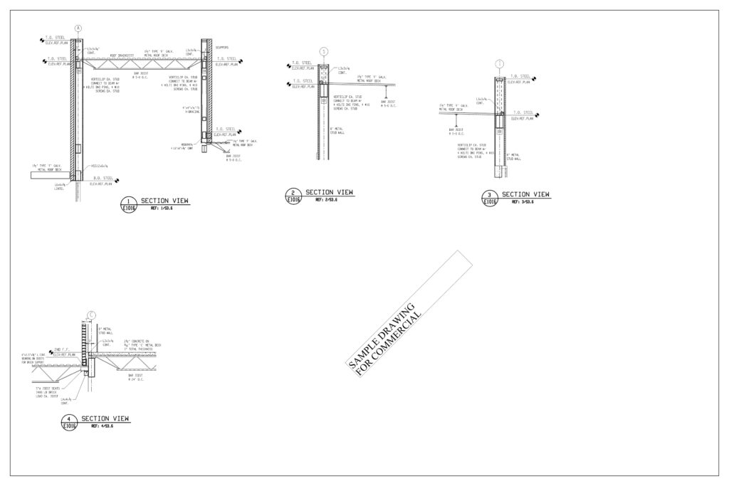
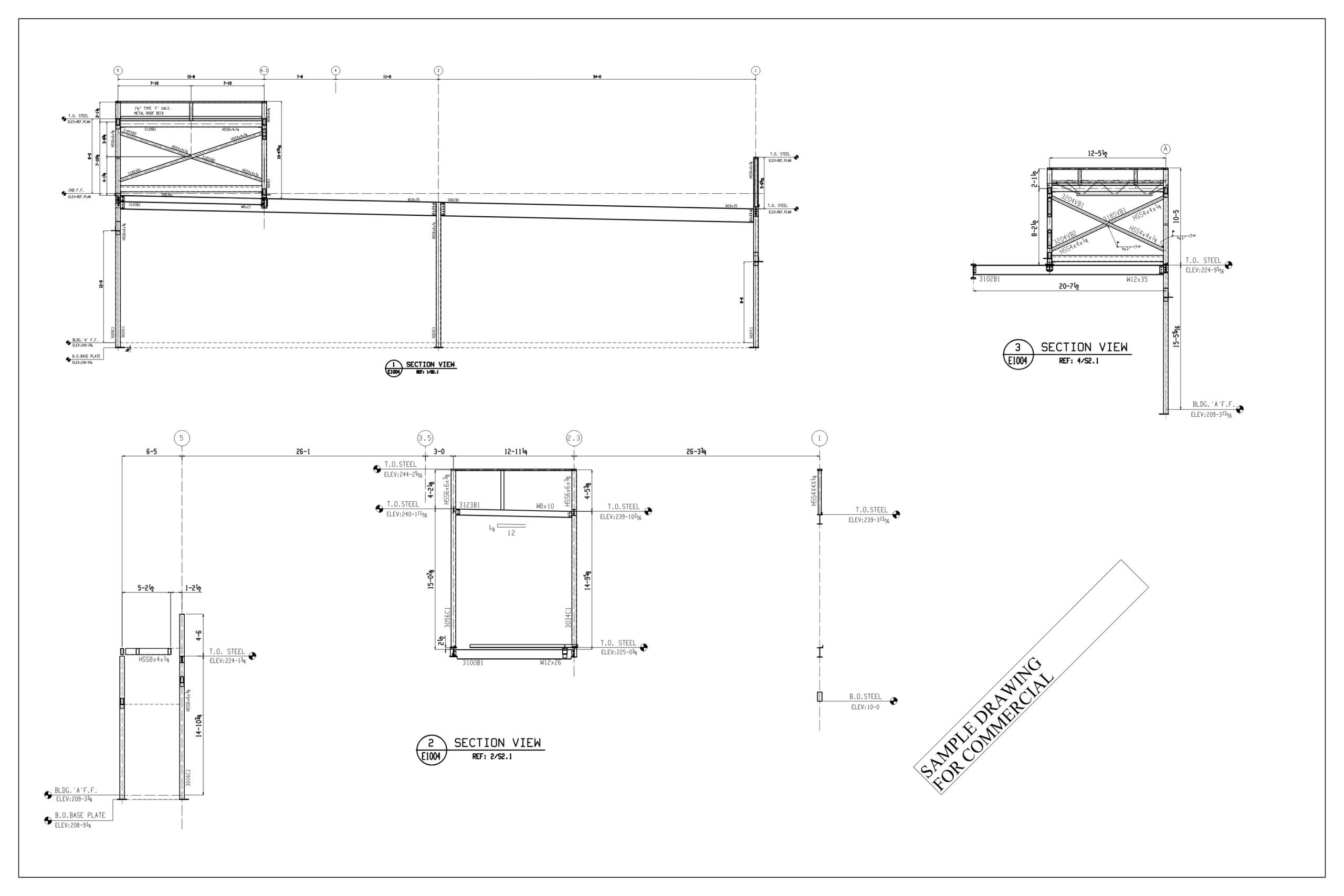
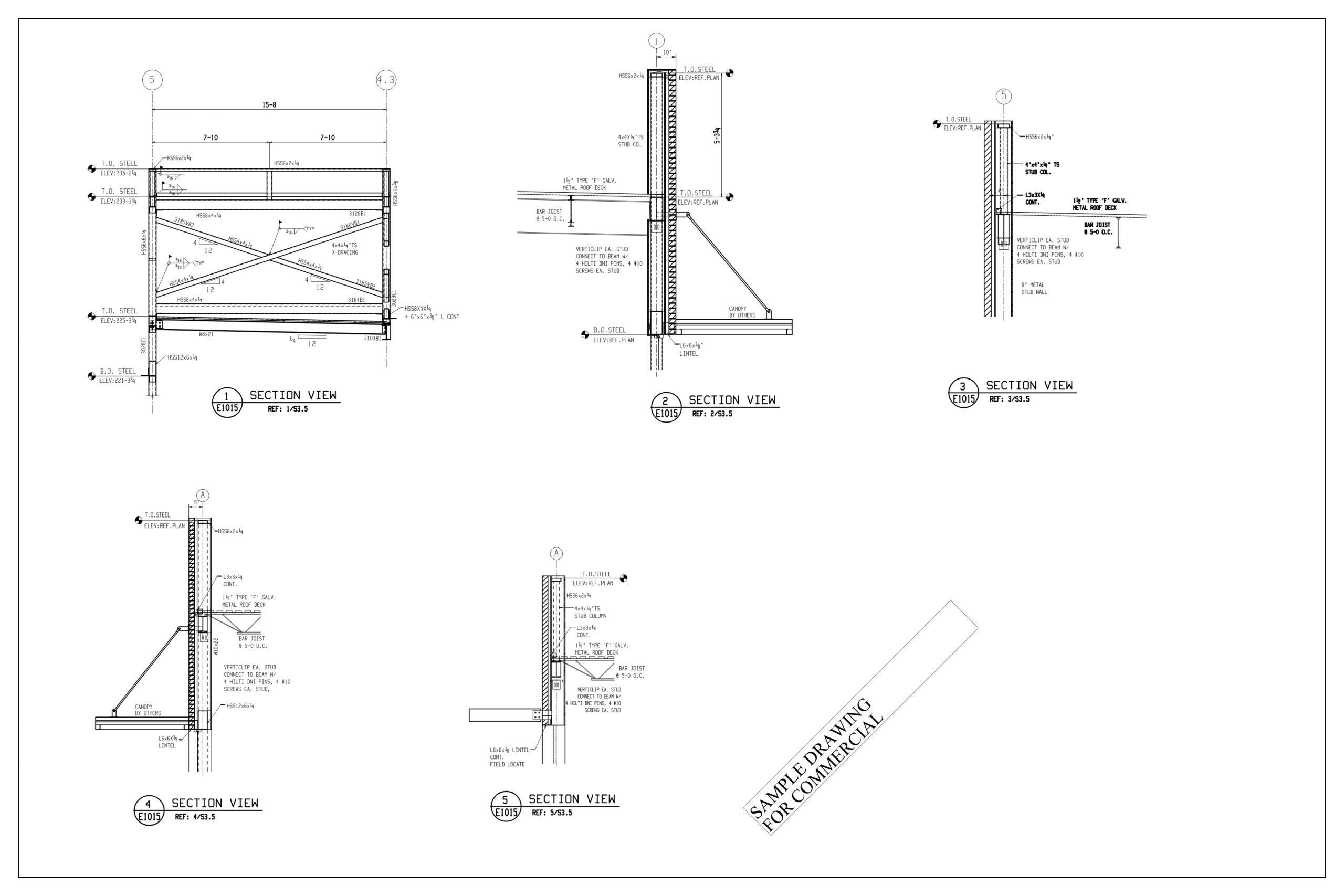
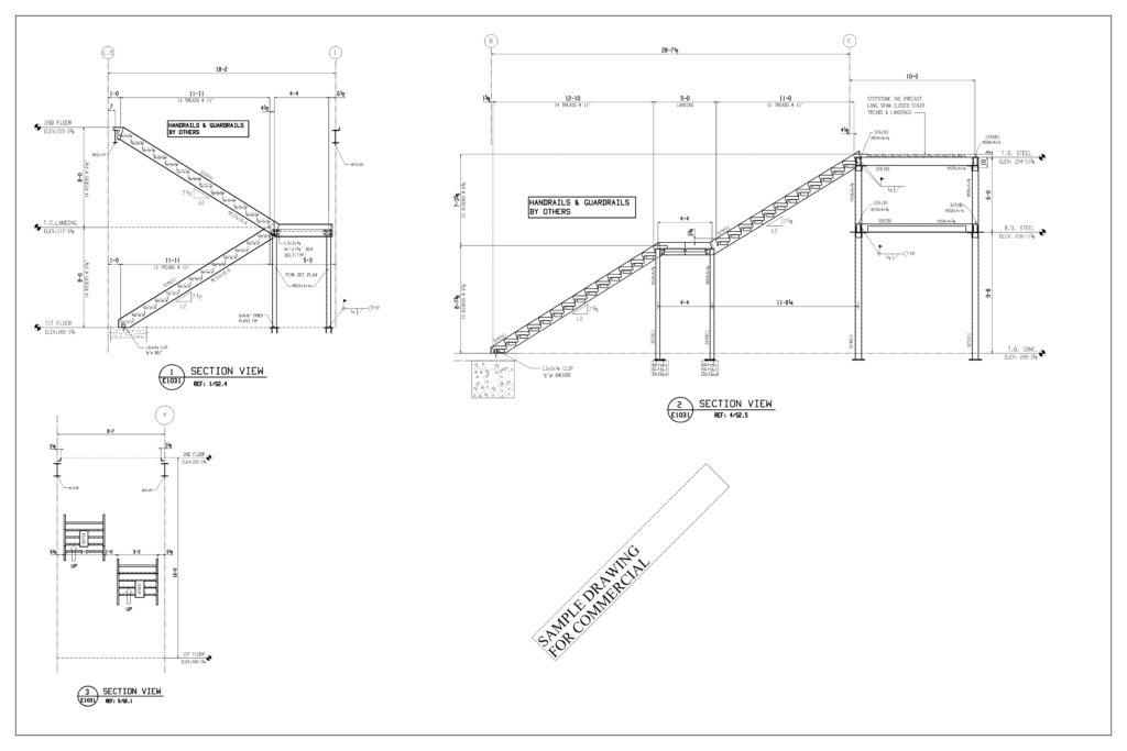
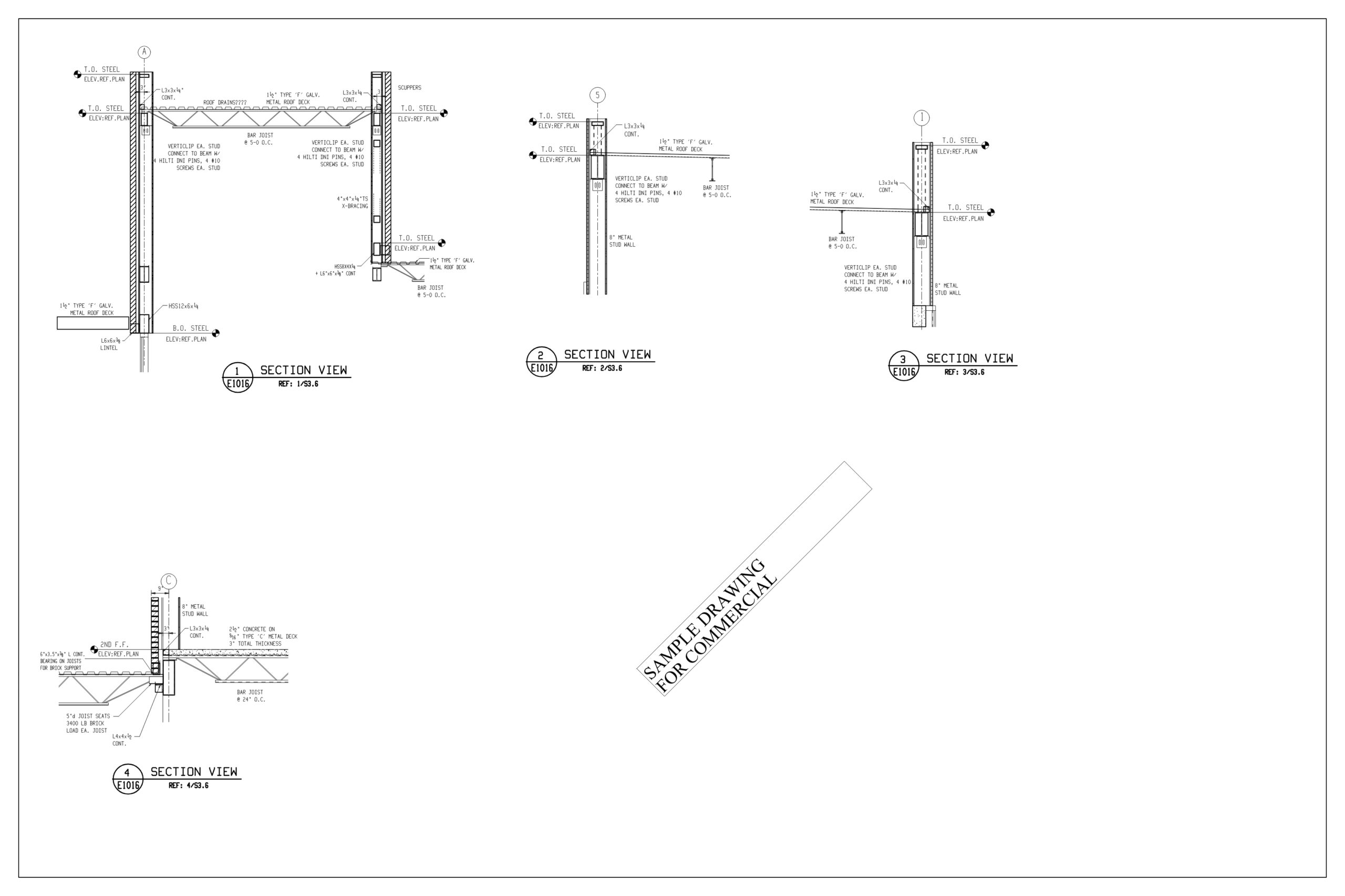
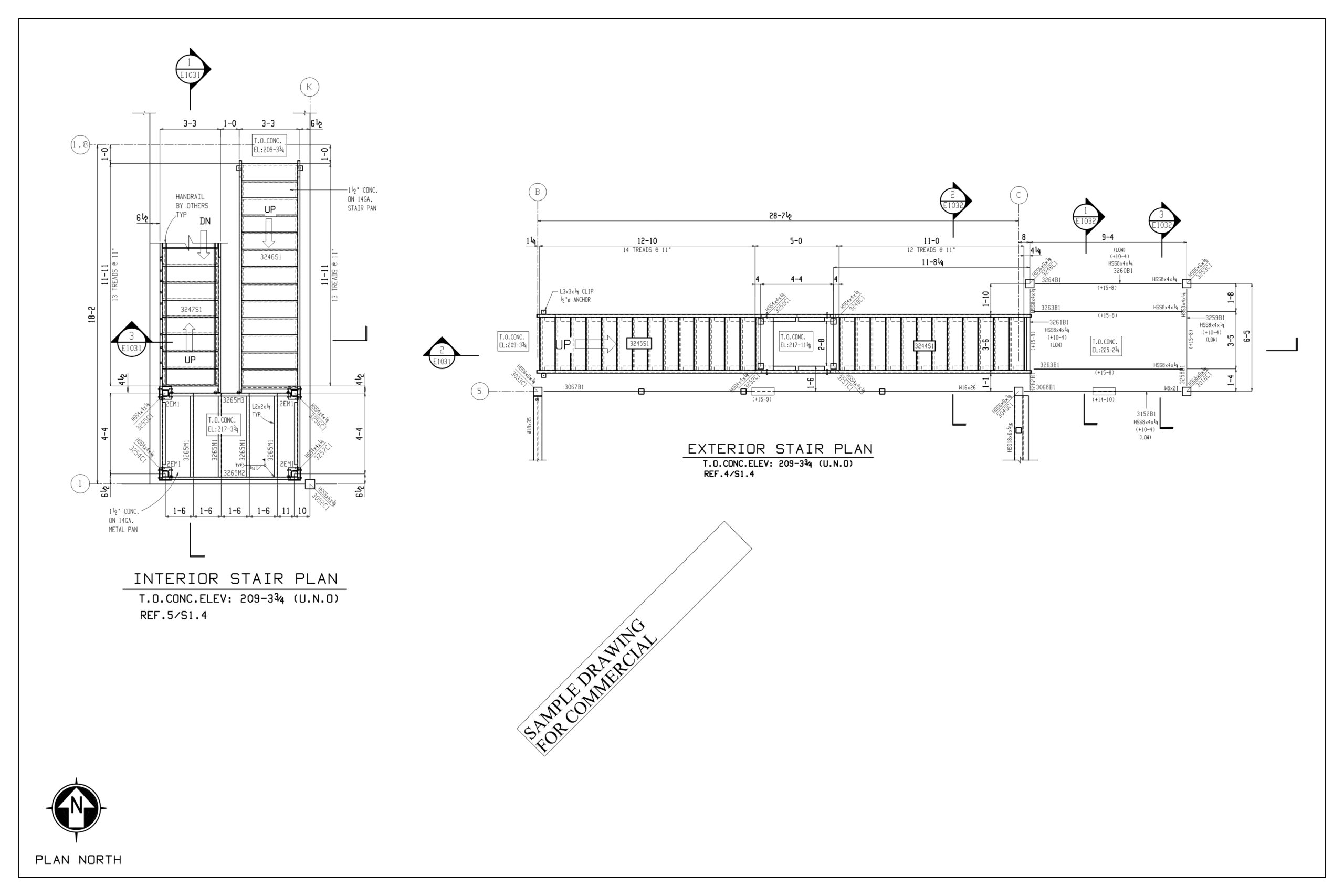
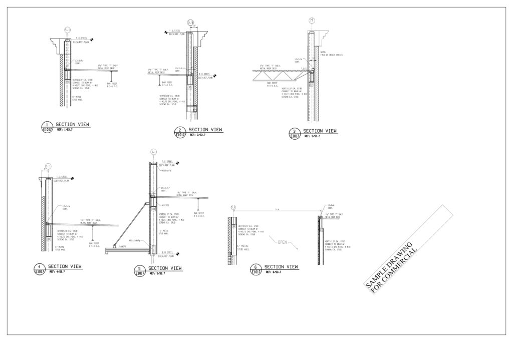
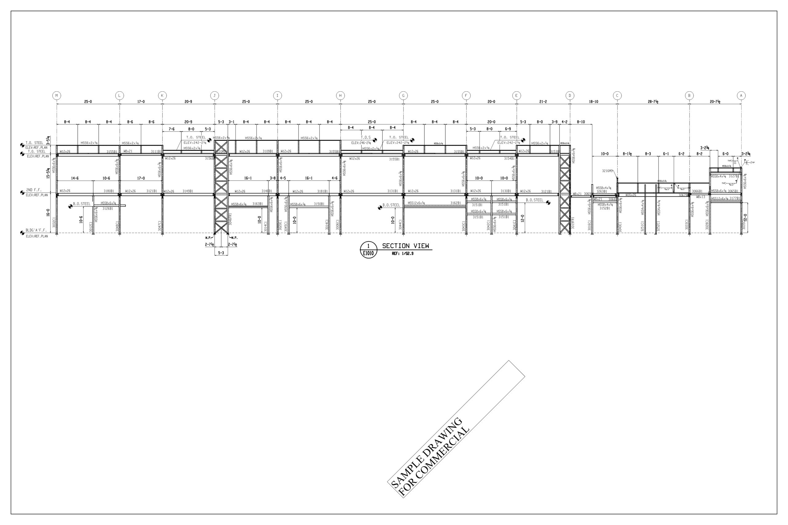
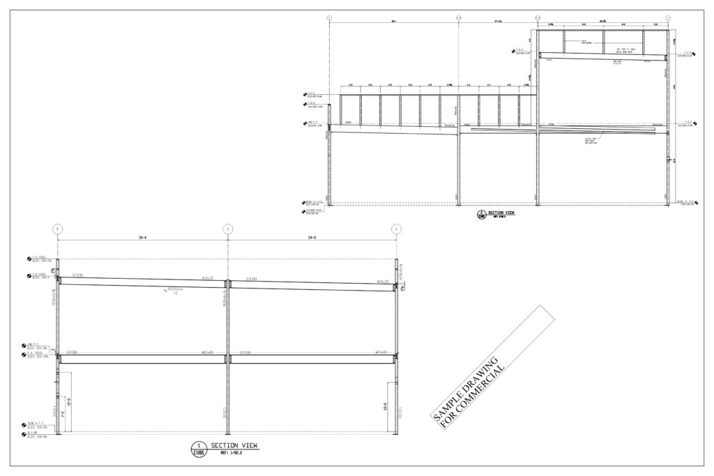
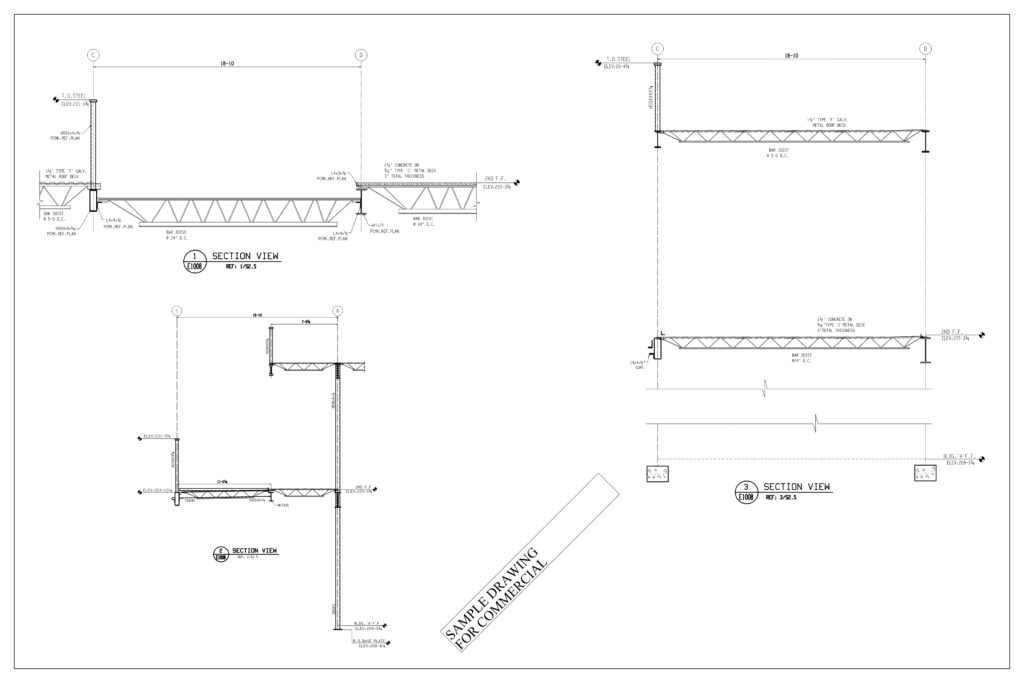
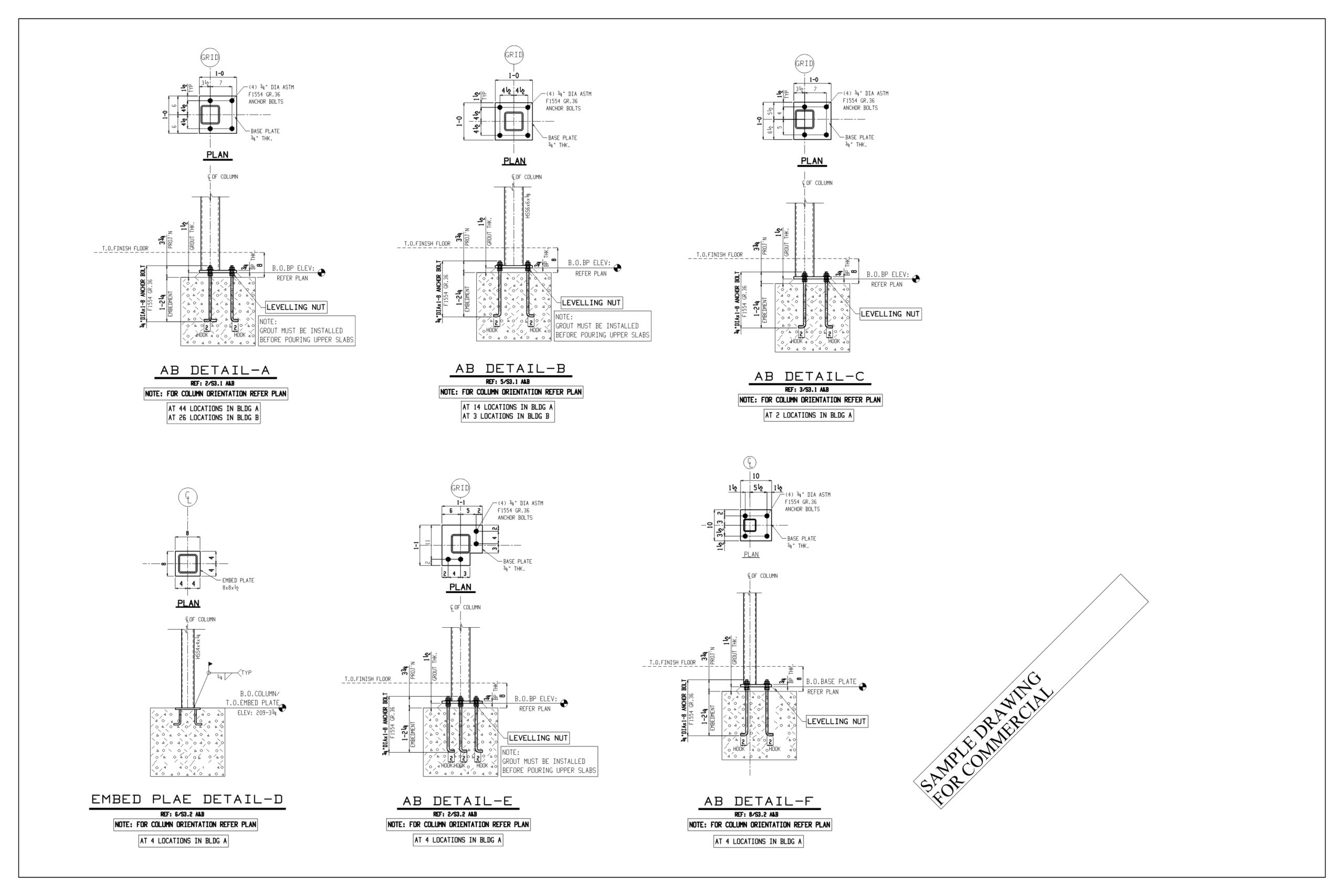
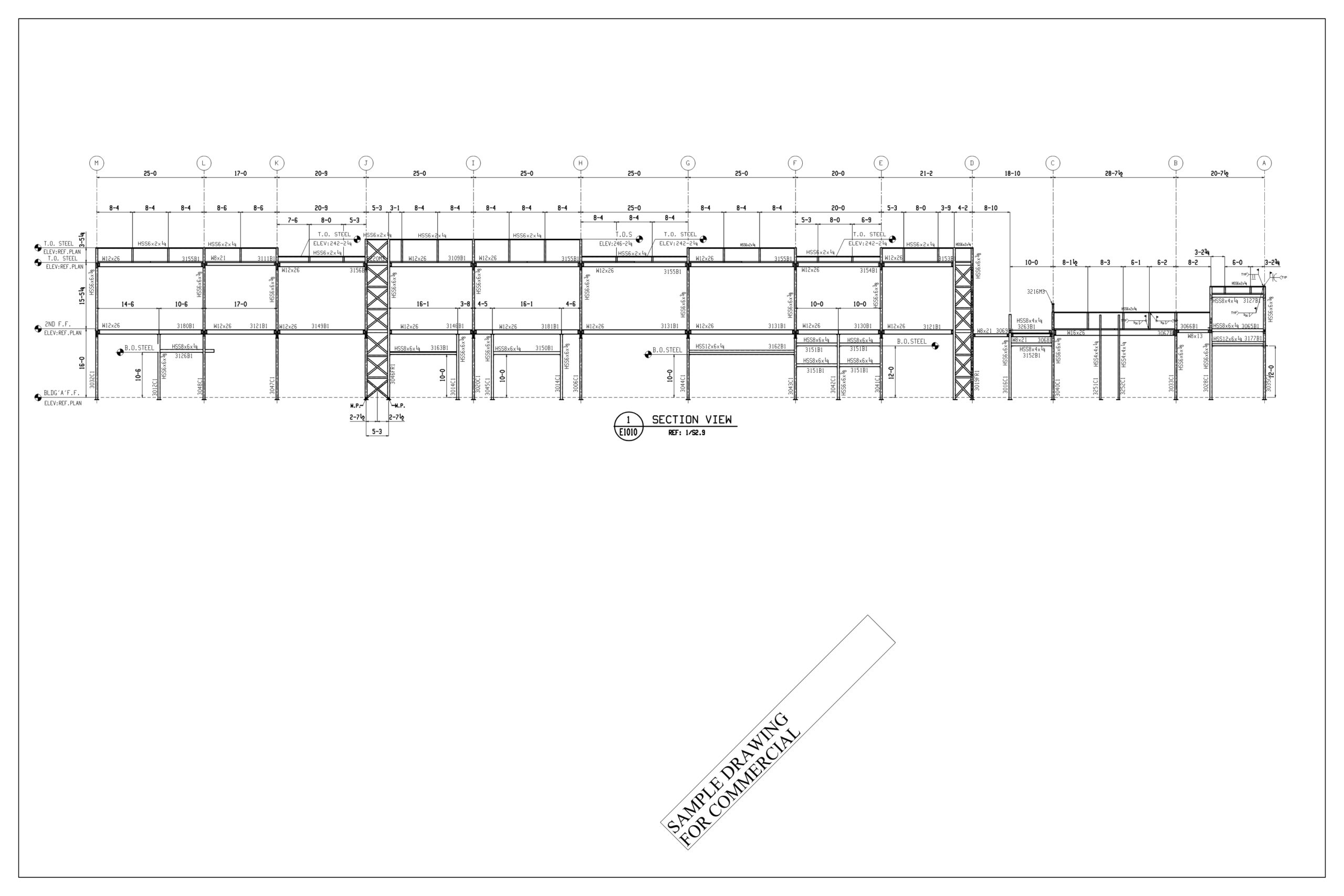
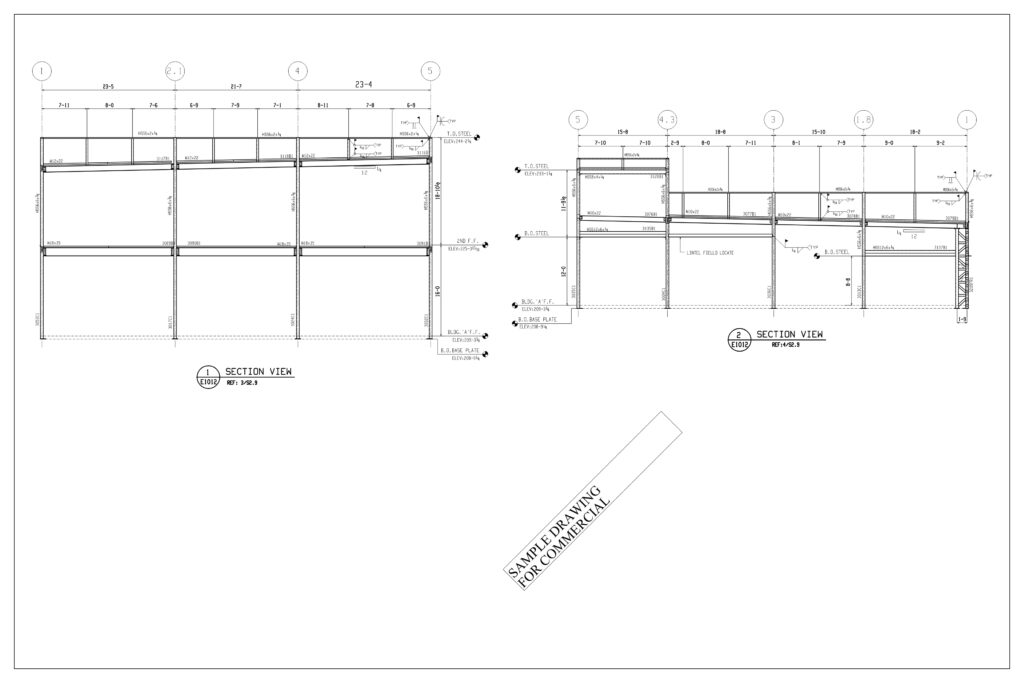
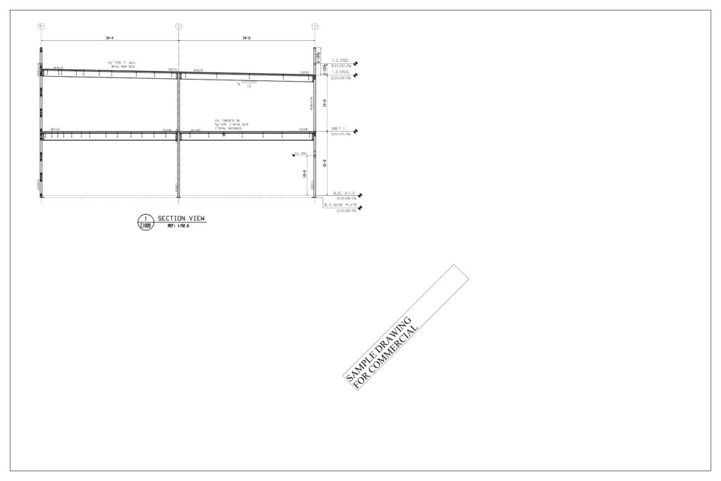
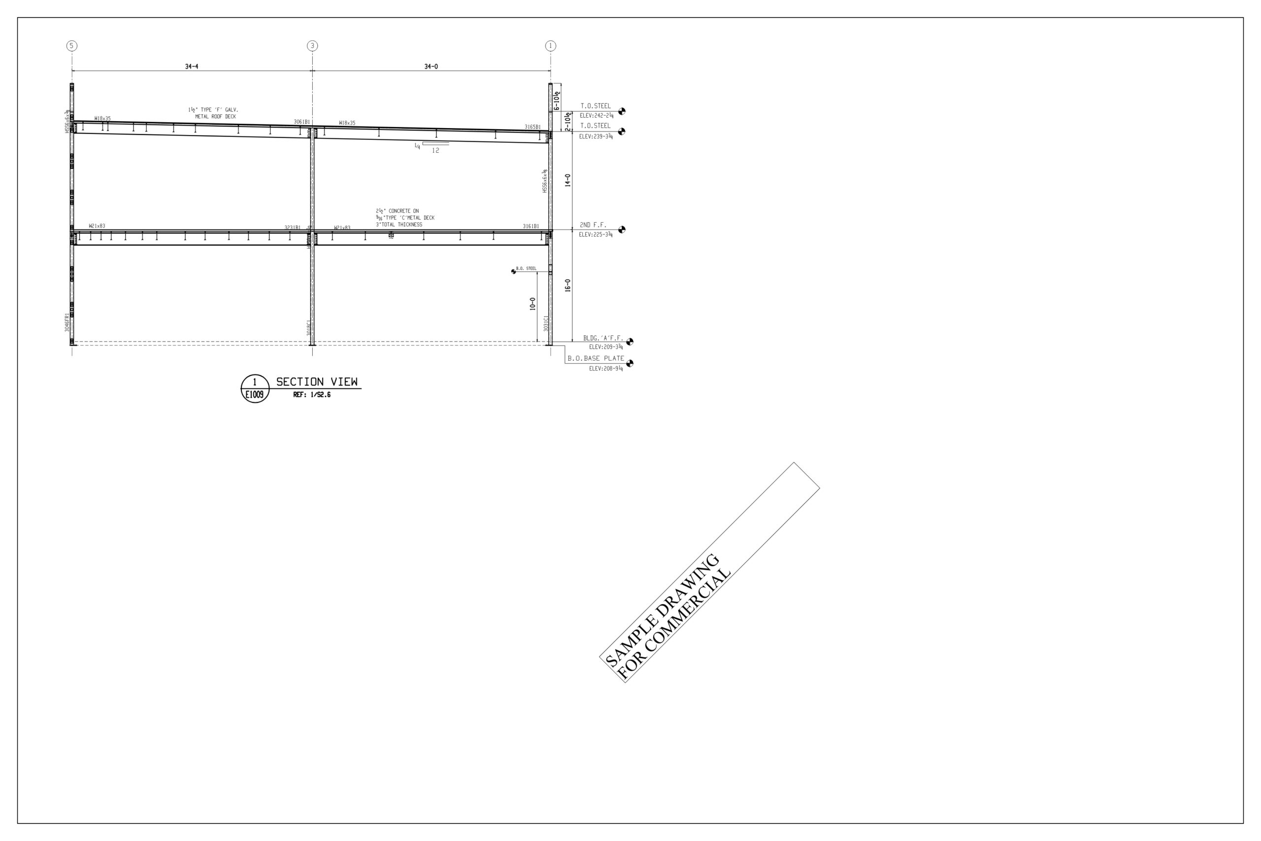
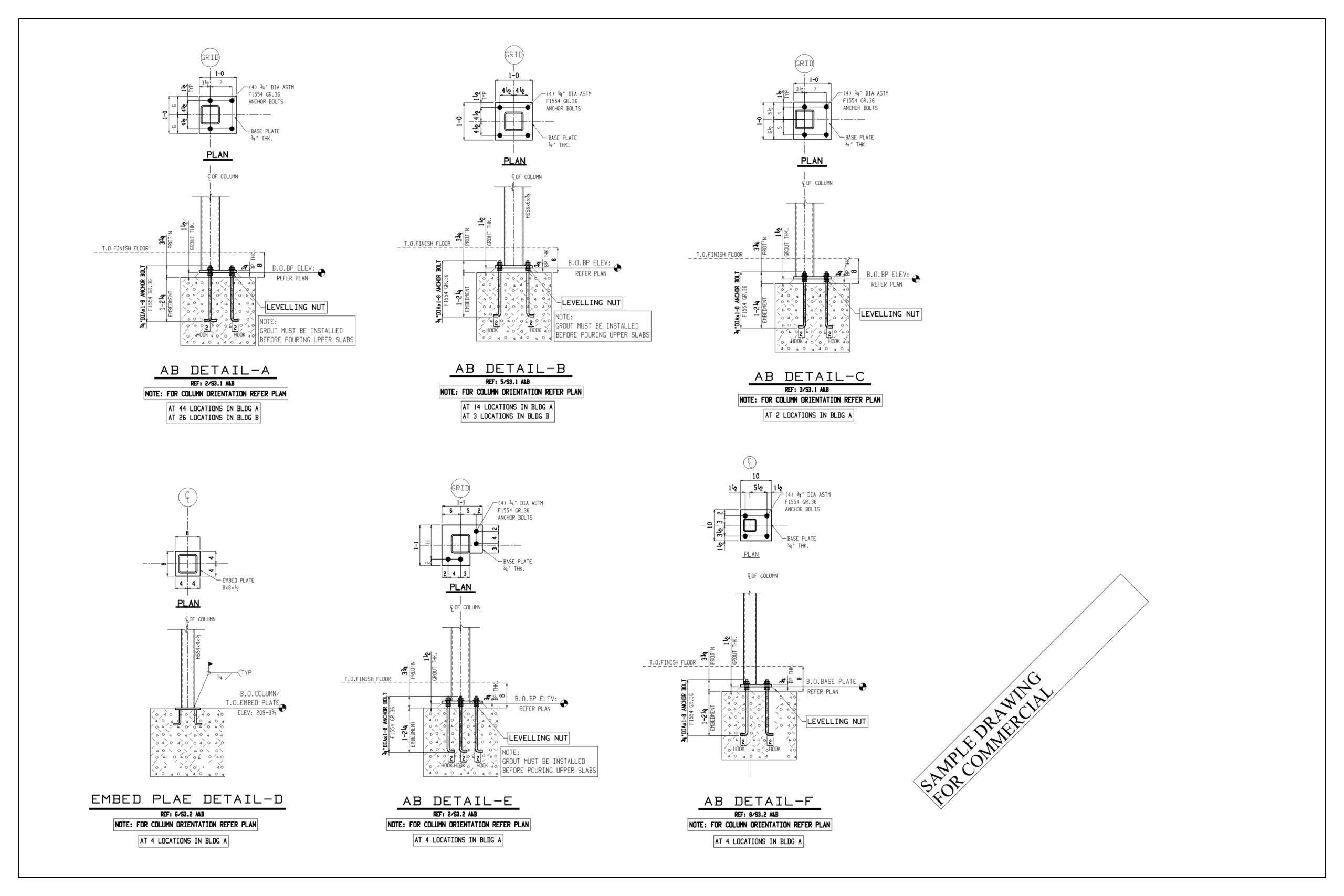
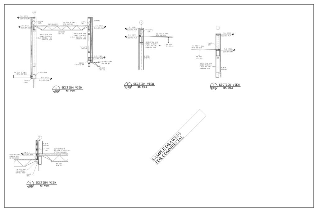
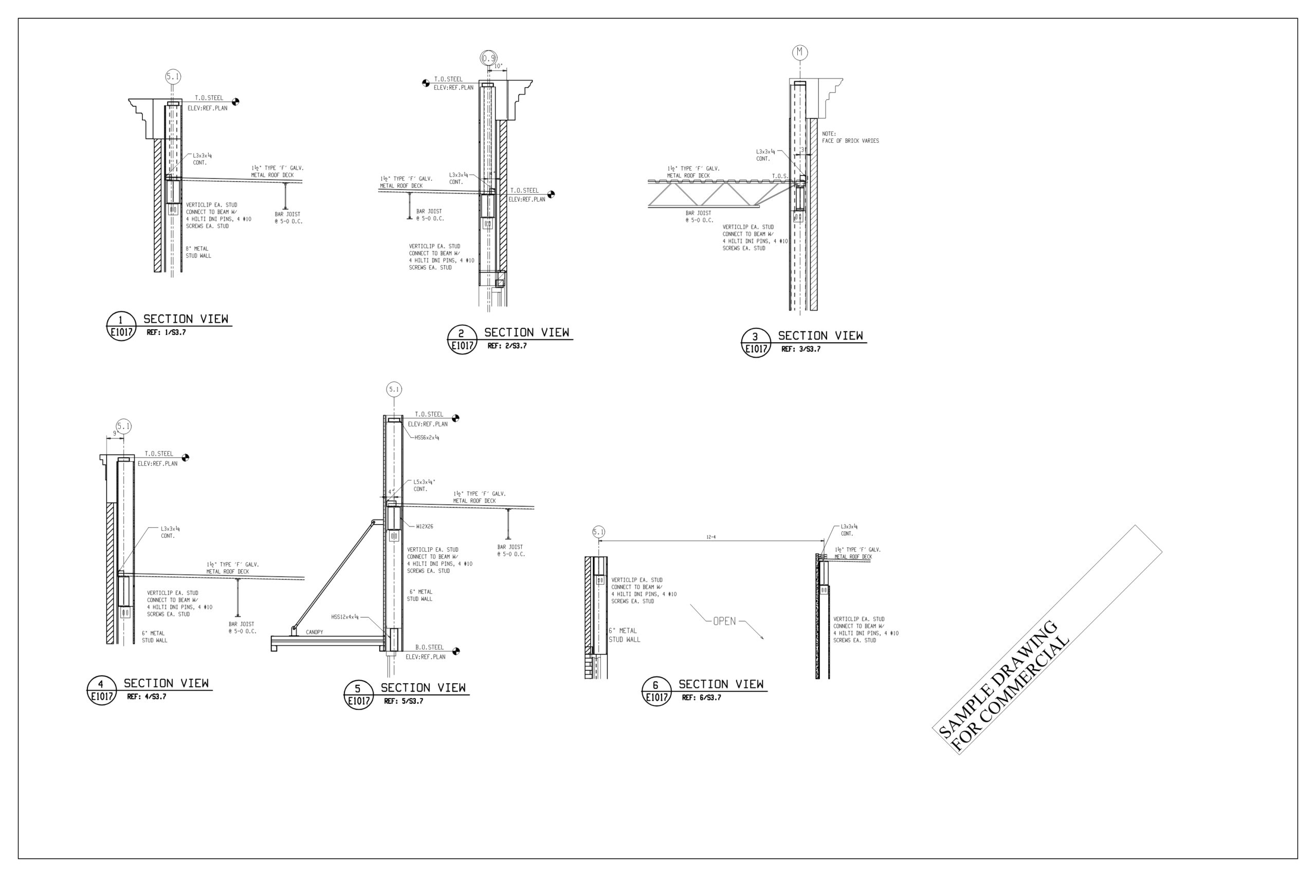
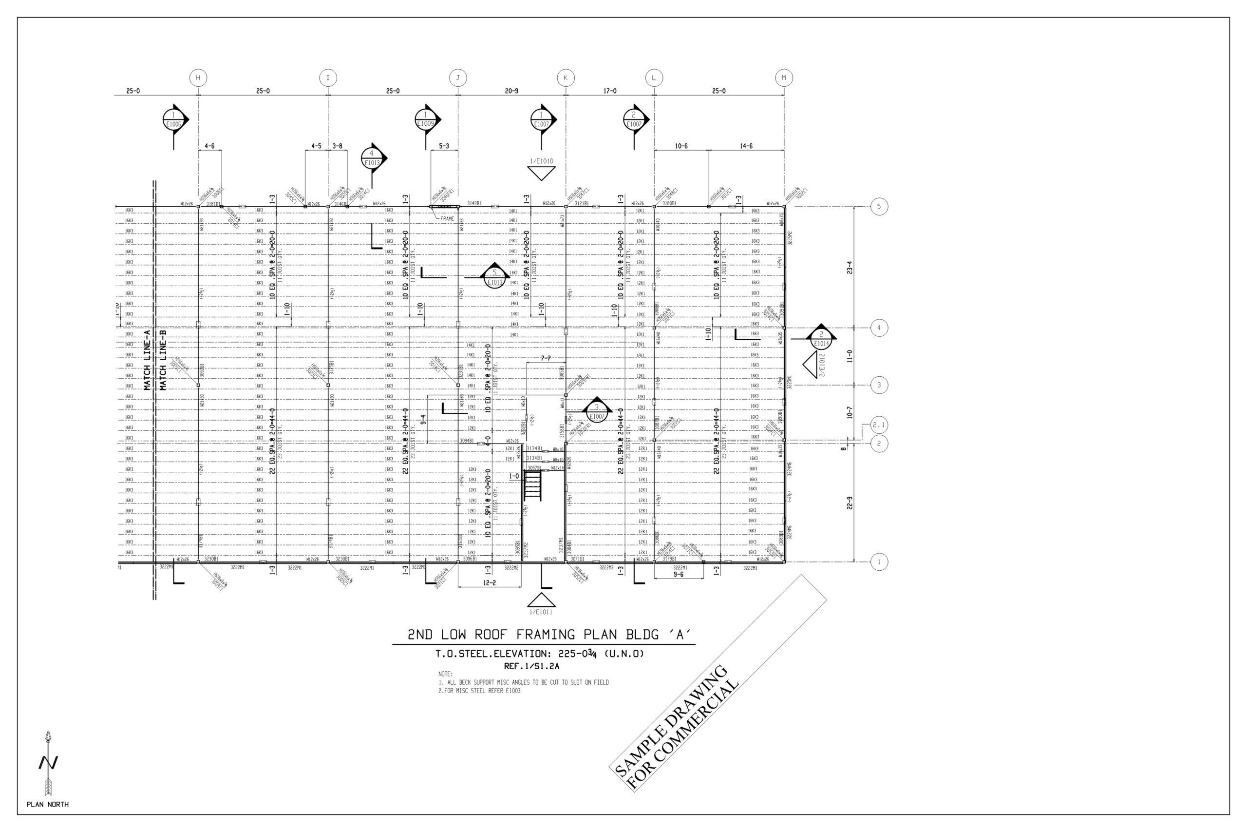
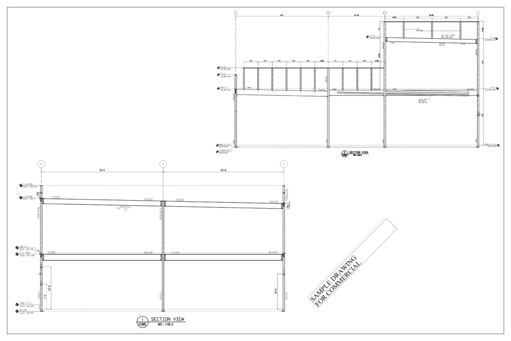
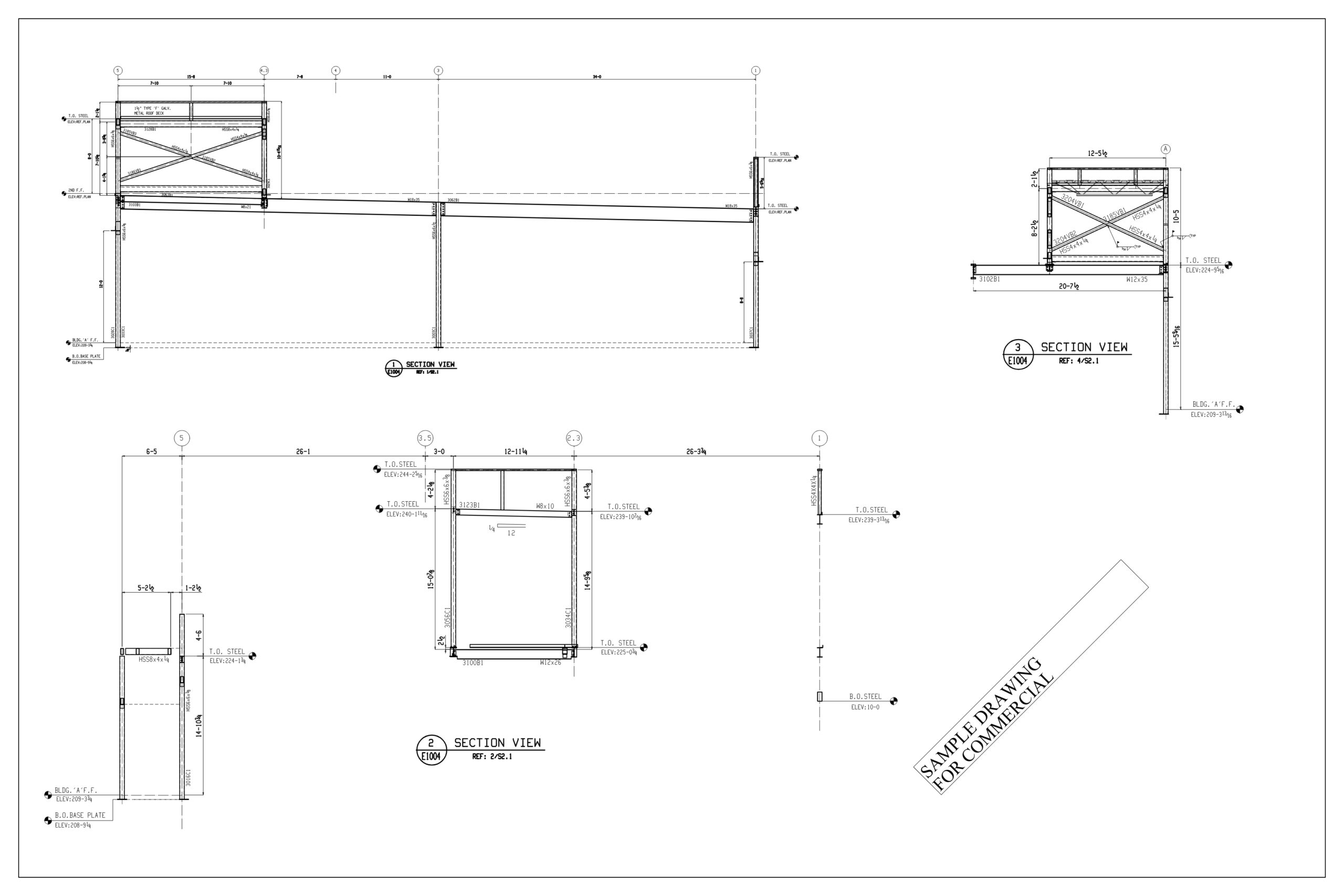
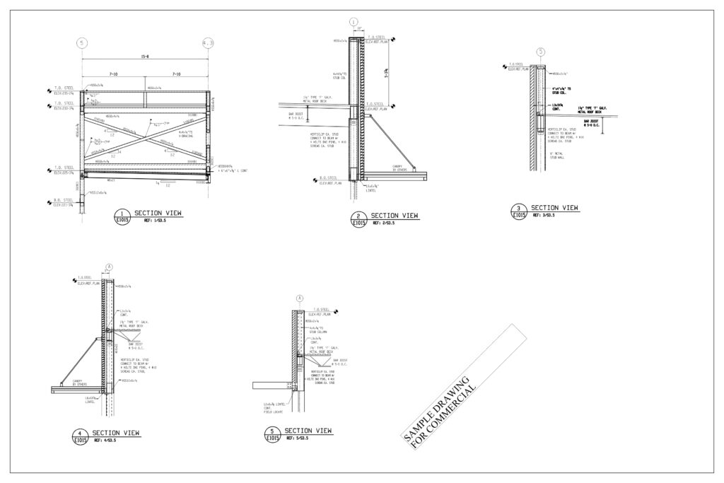
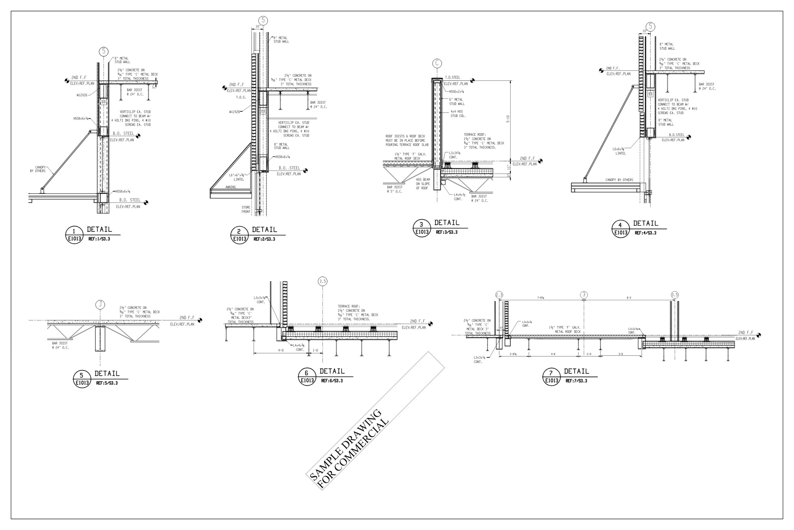
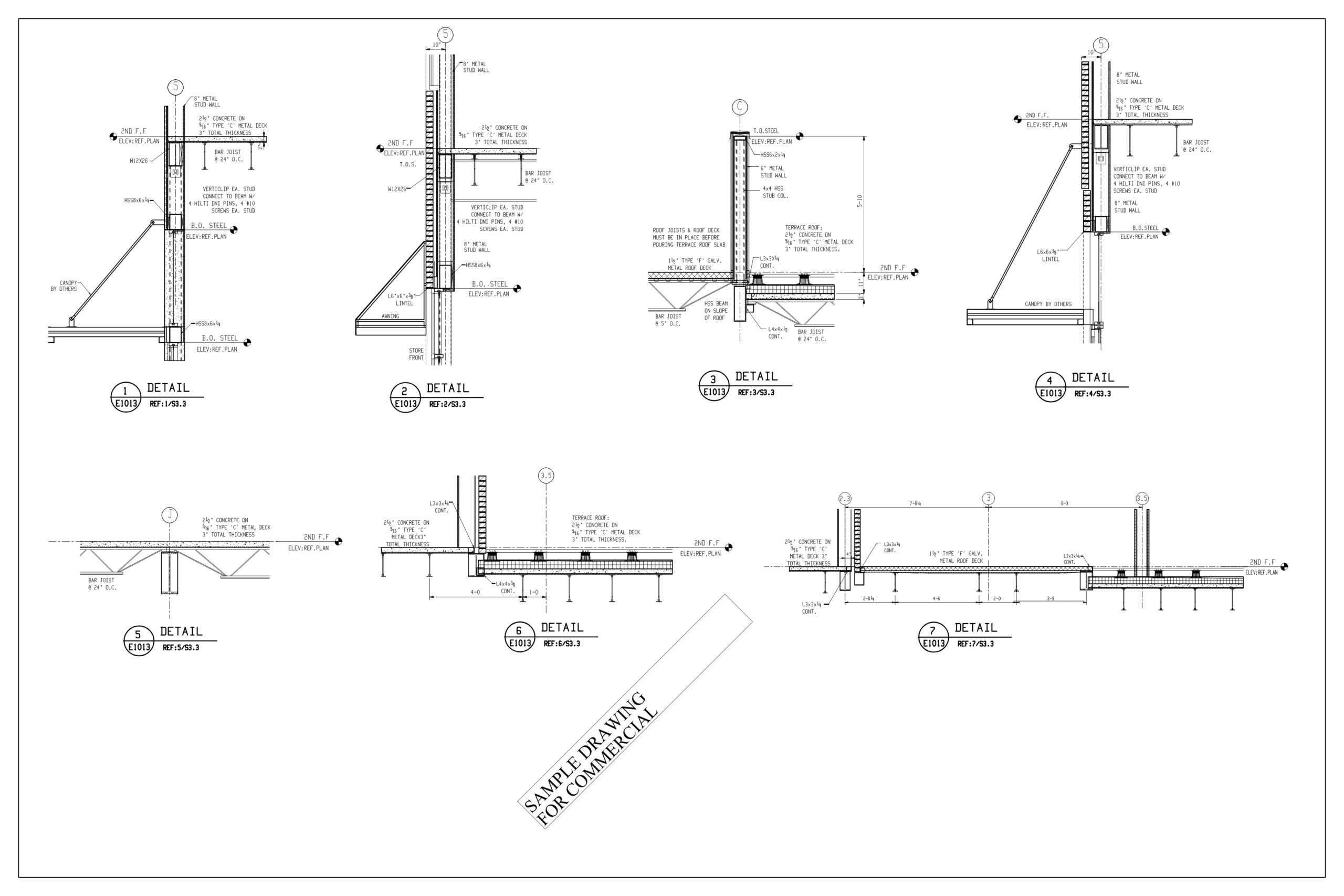
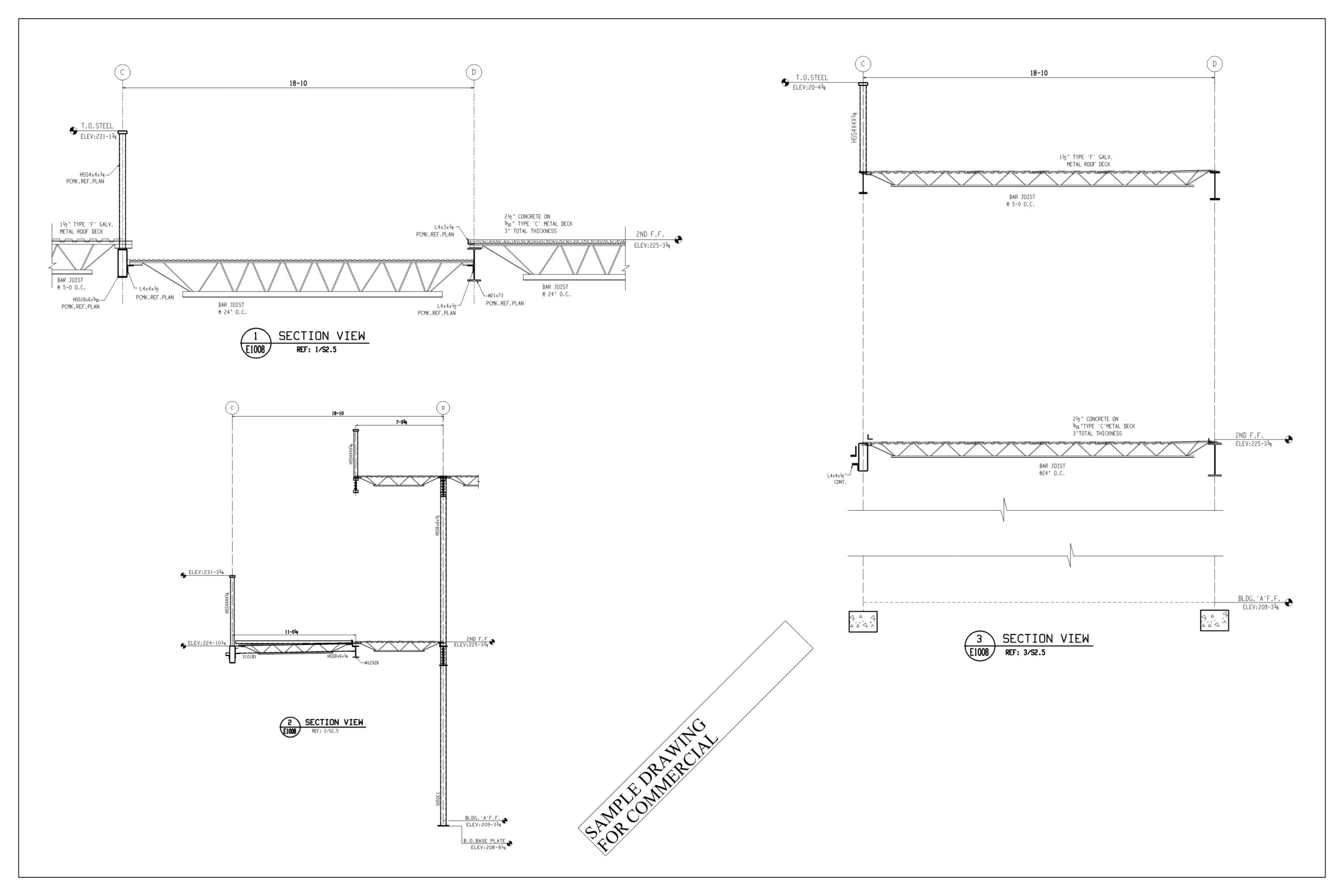
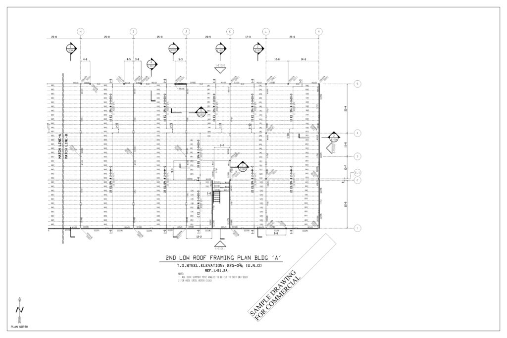
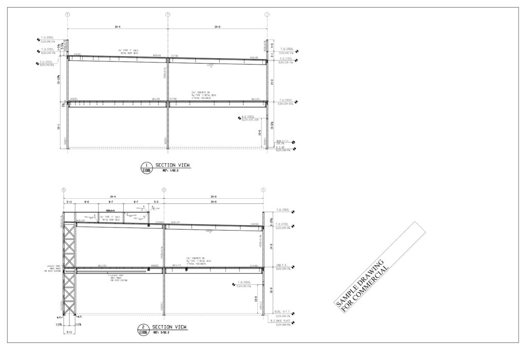
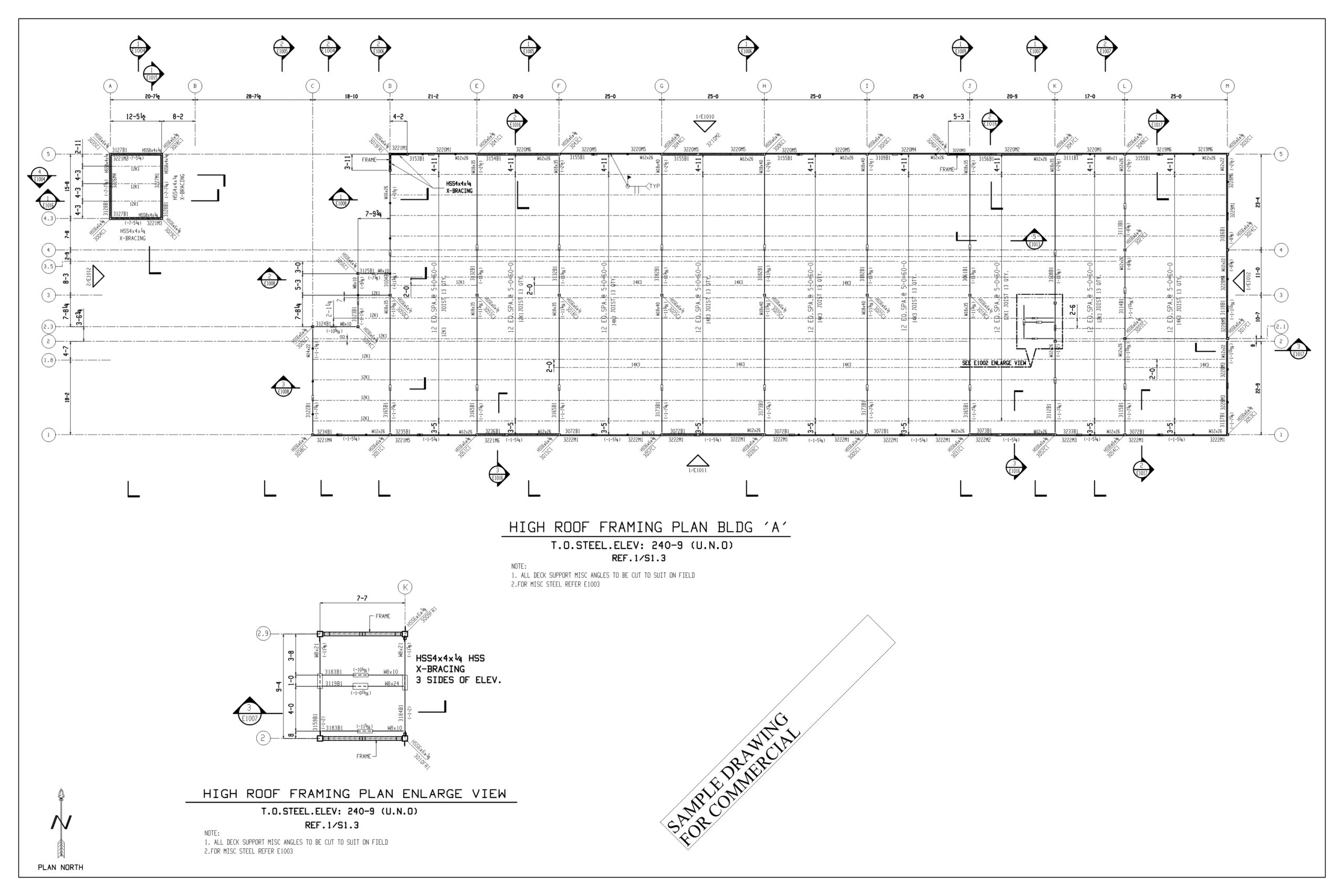
Sample Commercial Drawings
Rebar Sample Drawings
General Contractor
Careers
Contact Us
Facebook
Youtube
Instagram
Sample Commercial Drawings
Sample Commercial Drawings